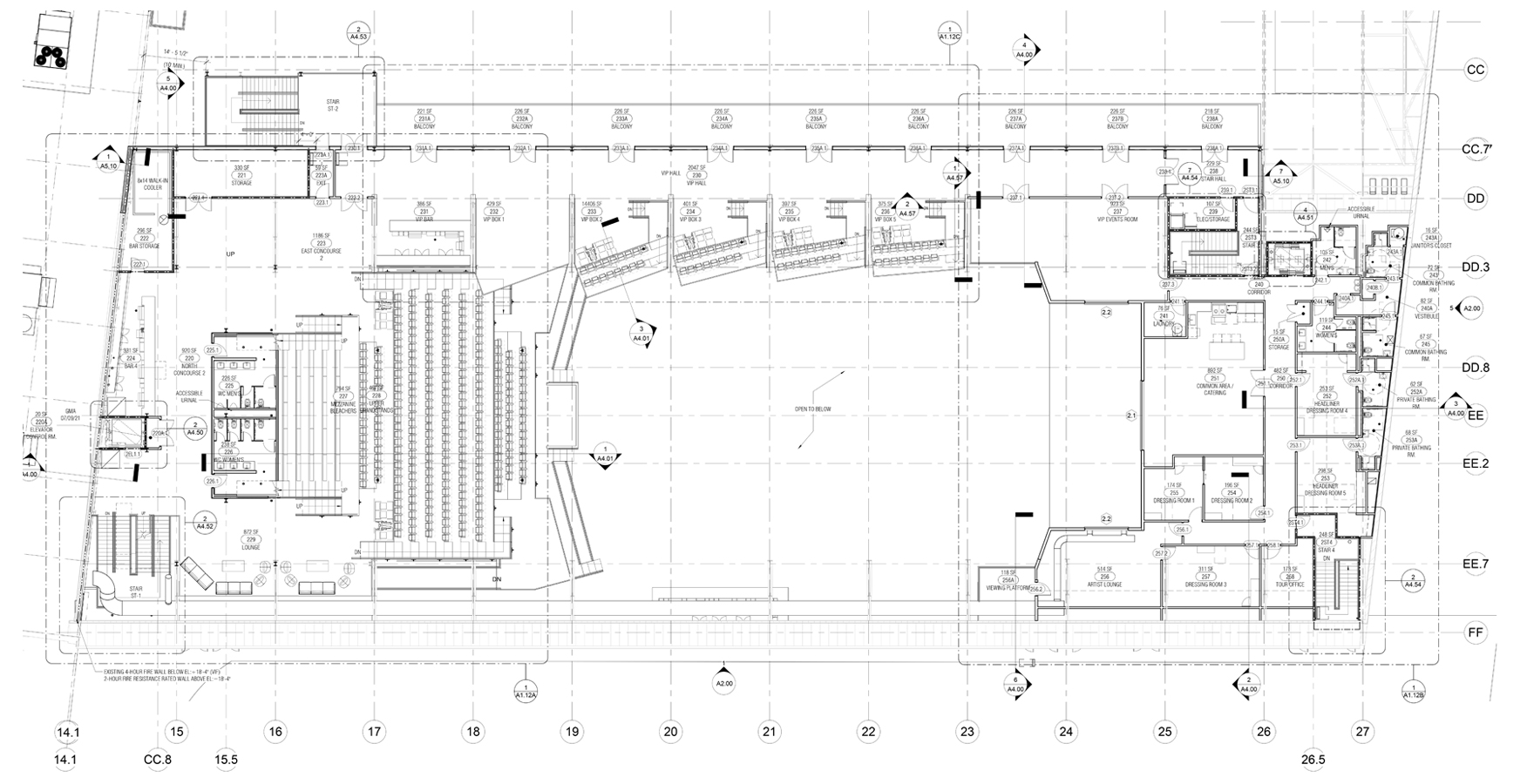
The Salt Shed – Adaptive Reuse Renovation, Chicago, IL

Since the late 1920s, the Morton Salt building has been a Chicago industrial icon. As industries moved away, the Chicago Department of Planning and Development launched the Industrial Corridor Initiative to revitalize these areas. Sold for adaptive reuse, the building was to retain its recognizable Morton Salt sign. Commissioned by Blue Star Properties, HBRA Architects’ design transformed the 58,000-square-foot warehouse into a 3,500-capacity concert venue with grandstand, boxes, refreshment areas, bathrooms, and backstage amenities. The industrial character was preserved, while incorporating flexible stage and seating areas for diverse performances. Private boxes feature exterior balconies for outdoor concerts. Completed in 2023, the new space combines modern concert experiences within a weathered shell, immersing the attendees in Chicago's industrial past.


First and second photos © Sandra Steinbrecher